服务热线:400-821-5008
: 2018-09-17 15:59:41 5146

上海新江湾城,天清气爽,一派秋日的怡人景色,中建大公馆项目位于新江湾城中央区域,是新江湾城内唯一、上海稀有的低密度纯别墅社区。项目所在的新江湾城拥有上海唯一的生态湿地,生态环境十分优越,造就传世豪宅风范!
/ 随着时代的发展,全案整装已经成为豪宅的一种标配!
所谓全案整装---
潮流设计,精选家具装饰是其重要环节之一
本次【中建大公馆】项目
设计师根据豪宅特性
选用意大利新古典风格家具为业主呈现
一个集古典与现代双重审美效果的高端全案设计。

业主故事
海外生活经验,钟情欧美时尚品牌
第一次与业主见面就被她的时尚品味所惊艳,从事服装设计行业,对于色调喜欢深色、配饰需要个性化,并且精致。海外长期生活经验对于进口品牌情有独钟,于是设计师将新古典元素和当代家居融合,并配合以潮流手办作为点睛,制造视觉冲突增强吸睛目的。
1
客厅
/ 客厅是家人相聚时间最多的一个空间,挑高的空间里缺乏家的温度与和谐,设计师通过传统新古典硬装元素施以流行色让感官更时尚且温暖,
软装搭配低奢和现代家俬打破常规套路,空旷的空间里多了一丝温馨而高贵的味道。

/ 在硬装上,新古典风格将线条简化,通过墙板+墙纸的搭配,加上局部的孔雀蓝大理石渲染,打造了一个高级且奢美华贵的客厅空间。
周末,约上几个好友,在这里畅聊,分享生活趣事,生活理应如此的精致奢美。

▲实景图

▲效果图
/ 年轻的业主追求时尚美好的潮流小物件,将多年收集的限量手办至于空间里的每一个角落,期望透过玩偶手办和设计,将窝心的旋律,
带进人们的日常里去,在迪士尼系列潮流手办为首的大家庭内,希望大家也能得到松软轻柔的内心治愈呢!


/ 让经典无休止的复兴,空间里摆放的这幅欧美知名设计师Christian lacroix推出的合作款家具摆设,金属材质与室内光线进行对话的时候,
因为角度的不同而展现出来的纷繁光晕,更是让身在其中的人感受到温暖,以及这种细节带给大局的美。

2
餐厅
/ 欧美知名设计师Christian lacroix合作款墙纸搭配现代餐厅家具,温馨而高贵。蓝色作为窗帘的主色,避免空间里白色墙壁色的大量聚集。 纯进口手工水晶吊灯体现生活的温馨,让家人的用餐成为一种享受,还能给餐厅带来非凡的奢华感。

3
地下室影音厅
/ 业主爱好音乐和电影,需求偏年轻化,设计师将地下室打造成一个私人影院及休闲室,可以看电影, /打游戏,k歌都可以。深色系窗帘关上之后,
使空间具有隐秘性,外来光线干扰小,同时有很好的隔音效果,是家庭私人娱乐的理想空间。

▲实景图

▲效果图
/ 一室两用,除了看电影之外,打破传统意义上的影音室,设计师通过精心设计的独特内饰,选用明星同款的麻将沙发,手工羊毛地毯,以及业主的潮流手办搭配,
空间里增添一些休闲娱乐的气息,呈现出放松的居家生活空间。晚上,脱离工作的繁忙,脱离繁杂的社交,一家人在这里随意的放松,聊天,是幸福的味道在空间
里蔓延。

4
卧室
/ 卧室的设计最为独特精致,用黑色打底,欧美知名设计师Christian lacroix合作款墙纸绚烂的花卉的背景墙散发出神秘、
美艳的气质,巴洛克风格的梦幻水晶吊灯降低了空间里的深色对比度,营造出古典美。

▲实景图

▲效果图
/ 在白色空间加入些许黑色的背景搭配,黑白色泽对比令人一见倾心。简约的彩色家居配置将实用性彰显,现代的水泥绿植装饰让整个空间里更有呼吸感。整个卧室散发出法式的神秘与浪漫。

1
设计难点
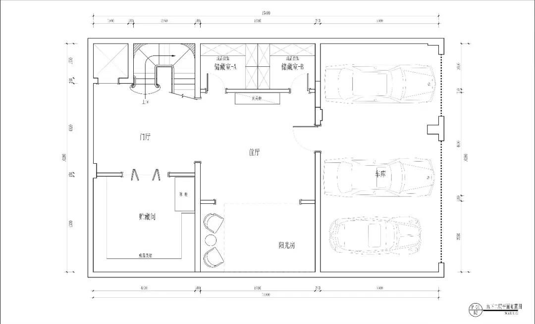
/ 地下2层没有采光和通风,停车入户后感受整体压抑,整层没有通风导致空气里充满潮湿,影响居住舒适度,设计改造巧妙将入户做跃层,
将B1层天井采光引入B2。自然的光线从上而下,清新的空气也流向每一个角落,形成了自然通透的光影效果,每一处都是清新自然。

▲地下二层改造后平面图
/ 整个作品最大的亮点就是用传统新古典硬装元素施以流行色让感受更时尚,软装搭配低奢和现代家俬打破常规套路。打造一个魔都的奢华迷梦空间,把潮流玩到最高境界。
/ 地下室两层空间良好的贯通,有阅历的设计师才能以最小化的改造达到最大的舒适。整个空间里用的是进口水晶灯,沉浸在至上光华的世界里又提升着每一个热爱生活者的品位和层次。

经典的纯进口奢美水晶与现代设计结合
一种英式的尊贵与优雅呼之欲出
徜徉在晶莹剔透的水晶灯世界里
给业主带来更多的时尚元素设计灵感

▲灯是光的艺术
不论是何种装饰风格
追根究底都是对生活一种态度的概括
就像兼具了现代与古典双重审美效果的新古典
就是将怀古的浪漫与现代的实际需求结合
以现代手法还原古典气质
进而打造出高雅而不失时尚的质感家居
援引古典常用的色彩
以简饰繁,复兴你的典雅情怀