服务热线:400-821-5008
已服务客户:68位
已施工项目:26套
应急充电
洁净厕所
代收发快递
温暖茶饮
稳定wifi
休闲小食
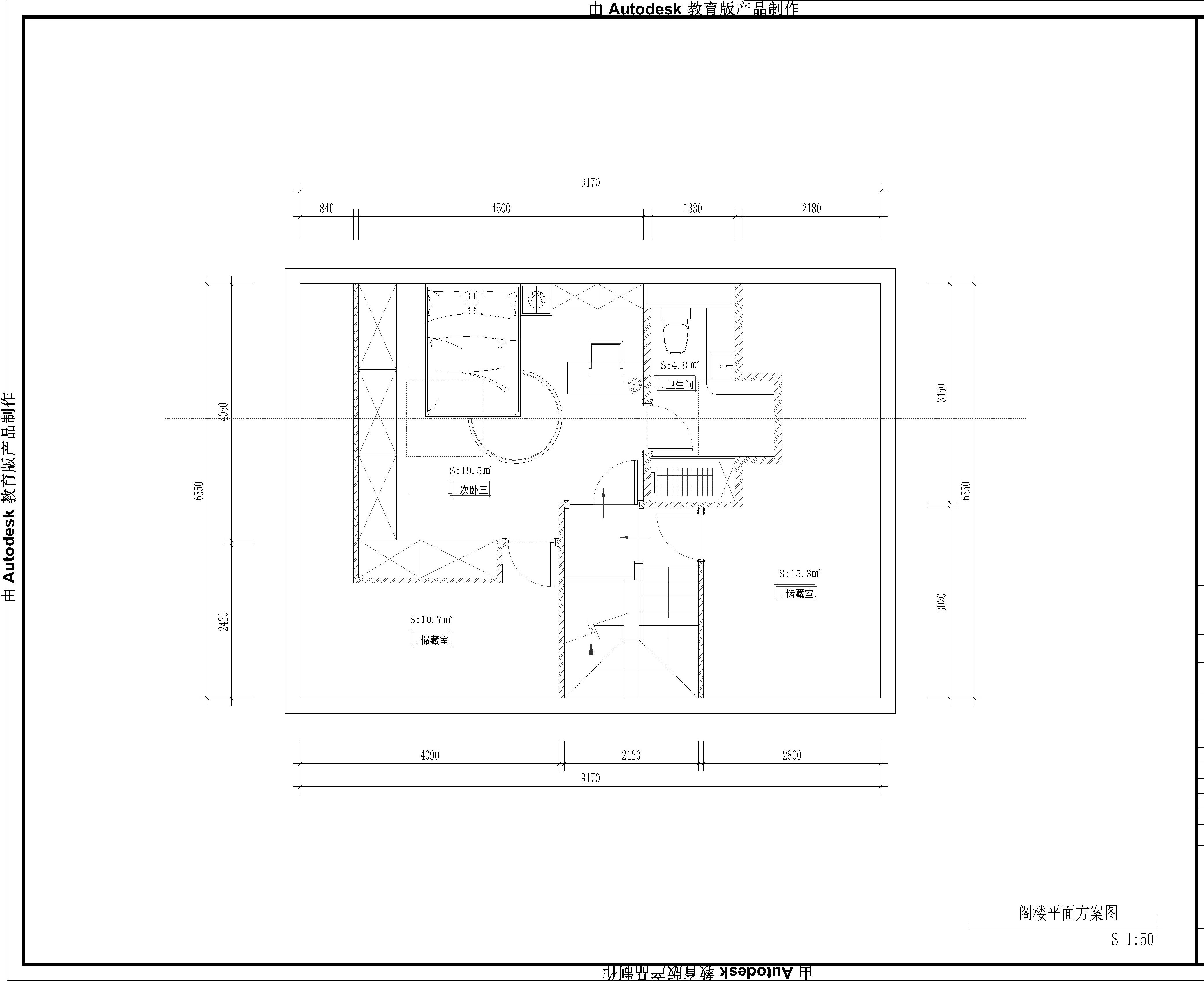
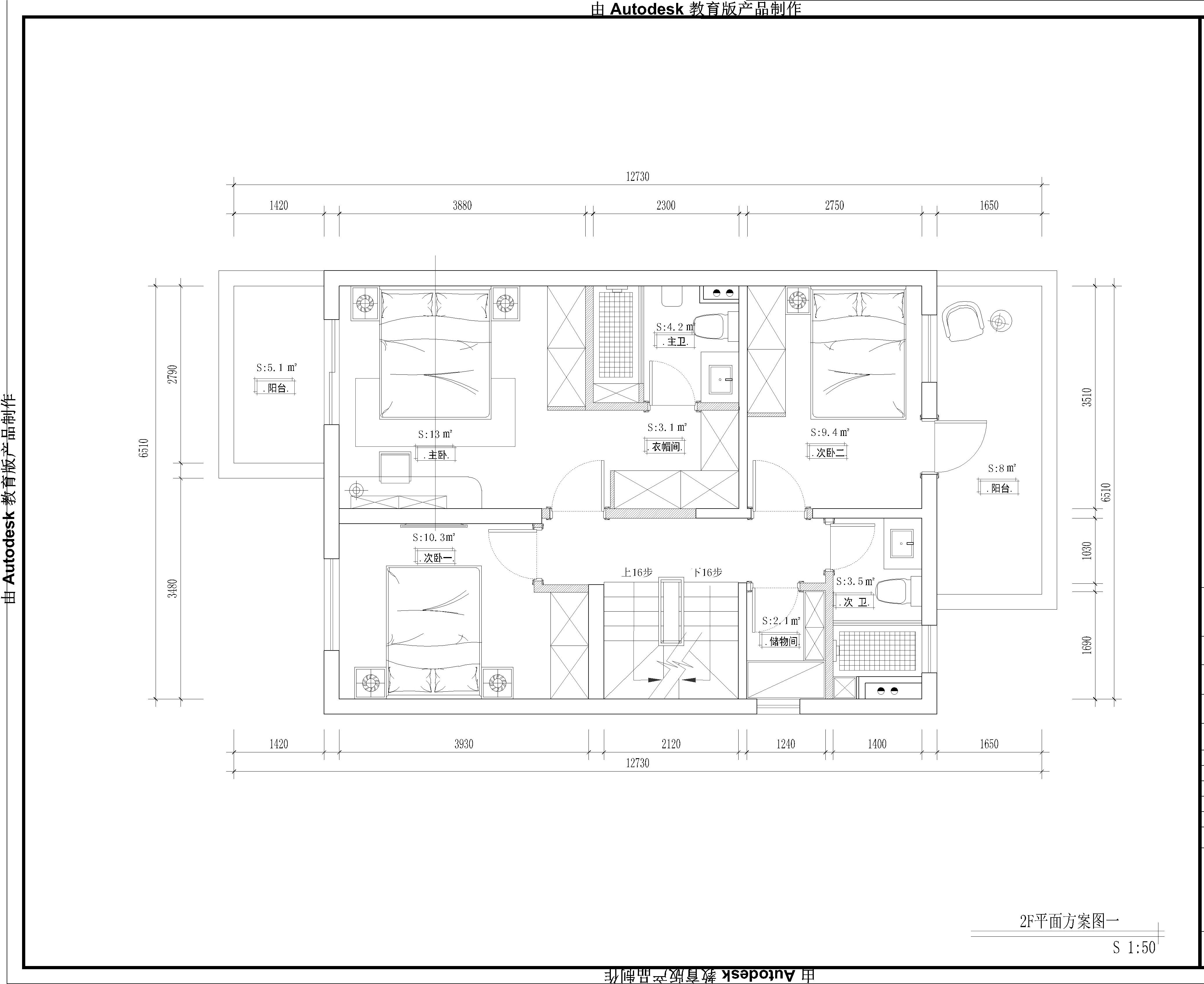
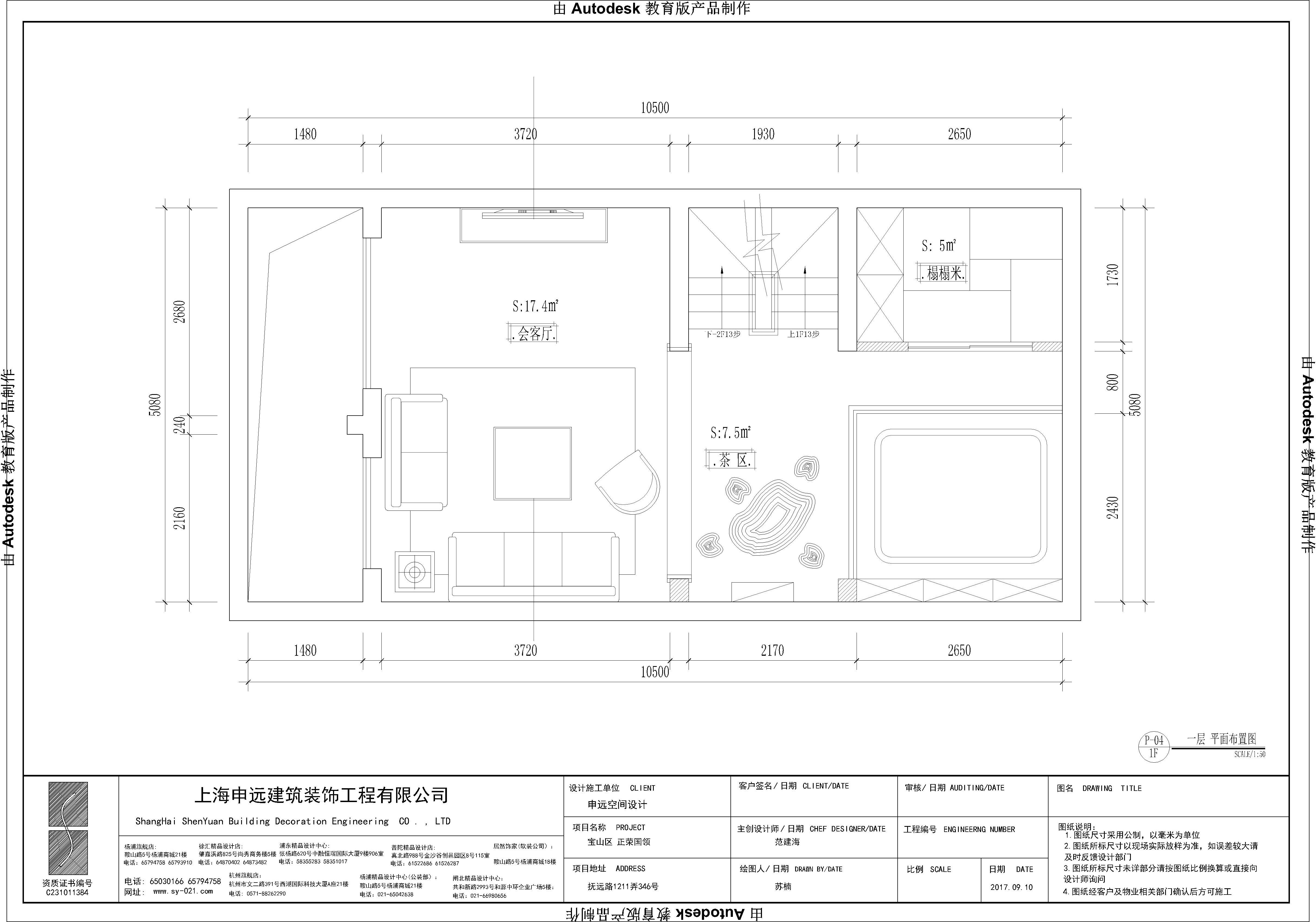
设计方案
24小时值守
空调开放
雨伞租借
工地巡查
小区现场设立服务中心,设计师及管理人员专职服务,为工地形象及材料工期提供服务。品牌材料企业组团入住中心,提供增值服务,确保产品价格,产品质量,供货时间。同时,免费向所有业主提供代收快递、参观样板房等各项增值服务,全天候24小时为业主的装修流程与新居生活提供零距离服务。
业内开启主材订货会让业主与设计师、材料供应商,材料管家面对面制定材料方案,所有进入主材订货会体系的品牌,产品均确保不高于市场零售价,差价五倍返还。主材订货会40天完成服务交接单。
为每一位业主配备施工服务卡,开工当天发放,客服中心将根据客户喜欢的方式定制回访计划,服务卡公布董事长投诉联系方式。
为业主配备专职的的服务团队,所有售后服务专职人员为正式编制员工,提供统一的培训、统一住宿、统一管理,主动为业主提供上门免费检修、定期为老业主提供水电煤免费检修等增值服务。
为新老会员提供系列享尊服务;设计师全程定制化服务、装修全程化服务、专属客服、主题研讨会、亲自DIY等;同时,会员可获得积分累积,二次装修优惠、推荐装修优惠等服务。
申远旗下的申远软装设计是集装软装设计、定制于一体的软装平台拥有自助的家具定制工厂、布艺研发中心和陈设中心,为业主提供“一户一定制”的设计方案和定制计划,实现全屋定制的梦想。
在装修过程中所有的问题,业主只需对接专职装修管家即可全方位解决。“装修管家”由专人专职为申远业主全程装修监督整个过程,确保客户在申远获得满意的装饰设计服务。
每月一次管理层工地检查。 正式开启无尘工地计划, 配备专属的工地形象部门 及巡查部门,由专人负责工地形象维护 及不定期工地巡查。
